CNC Γυαλί Loading Cutting Breaking Machine
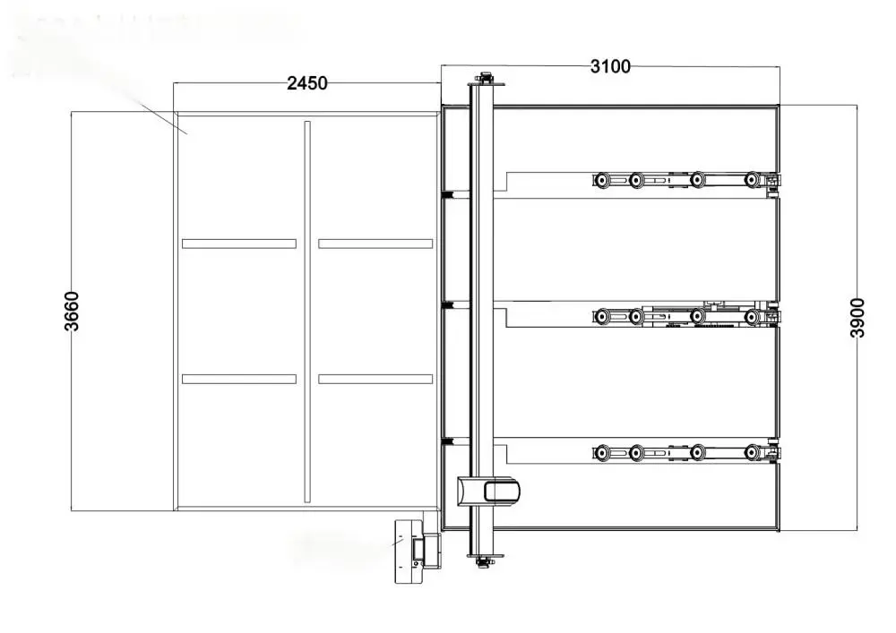
2.Μέγιστο μέγεθος γυαλιού:3660*2440*mm
3.Πάχος κοπής γυαλιού:2-19mm
4.Διάσταση:5550*4925mm
5. Λογισμικό βελτιστοποίησης: Optima
6. Λειτουργία: αυτόματη φόρτωση, αυτόματος έλεγχος πίεσης, αυτόματη εύρεση άκρων, σύστημα επίπλευσης αέρα, με σπάσιμο τραπέζι, τηλεχειριστήριο 360 μοιρών περπάτημα
7. Πιστοποιητικό: CE, ISO9001 8. Μεταφορά γυαλιού με σύγχρονους ιμάντες
- ΠΕΡΙΓΡΑΦΗ ΠΡΟΪΟΝΤΟΣ
Μηχανή Huashil: Ο αξιόπιστος κατασκευαστής μηχανών κοπής και θραύσης γυαλιού CNC
Χουασίλ Η Machine είναι κορυφαίος κατασκευαστής και προμηθευτής υψηλής ποιότητας CNC Γυαλί Loading Cutting Breaking MachineΤο μοντέλο HSL-YTJ3826 μας προσφέρει ανώτερη ακρίβεια, απόδοση και αυτοματισμό για όλες τις ανάγκες επεξεργασίας γυαλιού σας. Με πάνω από μια δεκαετία εμπειρίας στις εξαγωγές και δέσμευση στην καινοτομία, η Huashil Machine παρέχει αξιόπιστες λύσεις για την παγκόσμια βιομηχανία γυαλιού.

Λειτουργίες & Χαρακτηριστικά:
| Τεχνολογία κοπής και αυτόματη τροφοδοσία λαδιού Pεπαγγελματική κοπή γυαλιού Το σύστημα ελέγχου πραγματοποιεί αυτόματη κοπή ευθύγραμμου και ειδικού σχήματος γυαλιού, βελτιώνοντας σημαντικά την απόδοση κοπής γυαλιού. Η πίεση της κεφαλής κοπής ελέγχεται από μια ηλεκτρομηχανική βαλβίδα ακριβείας πίεσης. Η ομοιόμορφη πίεση εξόδου του κυλίνδρου επιτρέπει στην κεφαλή κοπής να εφαρμόζει τέλεια στην γυάλινη επιφάνεια για κοπή, αποφεύγοντας έτσι την κοπή. παρακάμπτοντας φαινόμενο που προκαλείται από προβλήματα ποιότητας γυαλιού . Κατά την κοπή γυαλιού, το λάδι κοπής γεμίζεται αυτόματα χρησιμοποιώντας πνευματικό έλεγχο πίεσης και κινείται συγχρονισμένα με την κεφαλή κοπής μέσω του PLC σύστημα ελέγχου . |
| Λογισμικό βελτιστοποίησης και βιβλιοθήκες ειδικού σχήματος Συμβατό με τον τυπικό κώδικα G του ιταλικού λογισμικού βελτιστοποίησης OPTIMA και οικιακής χρήσης Λογισμικό Guiyou: επίτευξη ευελιξίας στην επεξεργασία αρχείων σε διαφορετικές μορφές. Το πρόγραμμα βελτιστοποίησης κοπής γυαλιού έχει σχεδιαστεί ειδικά για την κοπή επίπεδου γυαλιού σε τεμάχια εργασίας διαφορετικών μεγεθών, βελτιώνοντας τον ρυθμό κοπής του γυαλιού και μειώνοντας την σπατάλη των αρχικών φύλλων γυαλιού. Η βιβλιοθήκη κοπής γυαλιού ειδικού σχήματος ενσωματώνει διάφορα σχέδια και πρότυπα γυαλιού ειδικού σχήματος για να καλύψει τις ανάγκες διαφορετικών ειδών κοπής γυαλιού. |
| Αυτόματη τοποθέτηση άκρων και έξυπνη σάρωση ειδικού σχήματος Αυτόματη εύρεση άκρων και τοποθέτηση γυαλιού: Ανιχνεύει με ακρίβεια την πραγματική θέση και τη γωνία εκτροπής του γυαλιού και ρυθμίζει αυτόματα τη διαδρομή κοπής της κεφαλής κοπής για βελτίωση της απόδοσης. Έξυπνη σάρωση ειδικού σχήματος: Ο ανιχνευτής μπορεί να σαρώσει έξυπνα ειδικά σχήματα πρότυπα και σχόλια για την αυτόματη δημιουργία γραφικών. Τα πρότυπα μπορούν να κατασκευαστούν από διάφορους τύπους υλικών για να επιτευχθεί κοπή προφίλ. |
| Αεριζόμενος πάγκος εργασίας Cτραπέζι και το σπάσιμο του τραπεζιού είναι Εξοπλισμένο με οπές αέρα και φυγοκεντρικούς ανεμιστήρες που παρέχουν ροή αέρα υψηλής πίεσης για να διευκολύνουν τη μεταφορά ή τη μετατόπιση του γυαλιού, αποτρέποντας παράλληλα τις γρατσουνιές στο τραπέζι. |
| Gκορίτσι μεταφέρωING Μετά το κοπή γυαλιούting, το γυαλί μεταφέρεται στην τράπεζα θραύσης επίπλευσης αέρα μέσω τριών σύγχρονοι ιμάντες μεταφοράς και το σύστημα επίπλευσης με αέρα για εργασίες διάσπασης. |
| Αυτόματη λίπανση ραγών μηχανή κοπής γυαλιού Το αυτόματο σύστημα λίπανσης ράγας οδηγού μπορεί να πραγματοποιήσει αυτόματη λίπανση, να μειώσει τη χειροκίνητη επέμβαση και να βελτιώσει τη σταθερότητα και την αξιοπιστία της λίπανσης. Μπορεί να ρυθμιστεί υπενθύμιση λίπανσης. Όταν χρειάζεται λίπανση, πατήστε το κουμπί πλήρωσης λαδιού για 10 δευτερόλεπτα για να ολοκληρώσετε τη λειτουργία, η οποία είναι εύκολη στη λειτουργία. |
| Δομή άμεσης κίνησης σερβοκινητήρα Υιοθετεί δομή άμεσης κίνησης σερβοκινητήρα, η οποία κινείται απευθείας από σερβοκινητήρες άξονα Χ και Υ χωρίς τη χρήση ιμάντων. Με υψηλή ακρίβεια και χαμηλό θόρυβο, είναι η προτιμώμενη δομή για εξοπλισμό CNC υψηλής τεχνολογίας. |
| Αυτόματος έλεγχος τάσης Το αυτόματο σύστημα ελέγχου πίεσης χρησιμοποιεί μια βαλβίδα ρύθμισης πίεσης υψηλής ακρίβειας για τον έλεγχο της πίεσης της κεφαλής κοπής. Η πίεση κοπής παρέχεται ομοιόμορφα, διευκολύνοντας το σπάσιμο των φετών. Κατά την κοπή γυαλιού διαφορετικού πάχους, δεν χρειάζεται να ρυθμίζετε χειροκίνητα την πίεση. Το σύστημα κοπής προσαρμόζει την αντίστοιχη πίεση σύμφωνα με το βελτιστοποιημένο πάχος του αρχικού φύλλου γυαλιού, κάτι που είναι εύκολο στη χρήση. |
| Ανίχνευση τάσης Η ανίχνευση τάσης μπορεί να εμφανίσει την κατάσταση τάσης κατά τη λειτουργία σε πραγματικό χρόνο και να συνεργαστεί με το σύστημα συναγερμού του μηχανήματος για εύκολη παρακολούθηση της κατάστασης λειτουργίας του μηχανήματος .
|
| Αυτόματη επισήμανση Αντικατάσταση χειροκίνητης επισήμανσης. Ο εκτυπωτής εκτυπώνει αυτόματα μια ετικέτα που καταγράφει τις πληροφορίες του γυαλιού και τα δάχτυλα του κυλίνδρου επισήμανσης αρπάζουν την ετικέτα και την κολλούν στην επιφάνεια του αντίστοιχου γυάλινου τεμαχίου. Η τυπική κεφαλή μηχανής για επισήμανση έχει υψηλή απόδοση επισήμανσης. (Συνιστάται στους πελάτες να διαμορφώσουν τη λειτουργία επισήμανσης) ) Οι ετικέτες μπορούν να οριστούν με πολλαπλά περιεχόμενα, όπως: μέγεθος γυαλιού, πληροφορίες πελάτη, σειριακός αριθμός, διαδικασία, κωδικός QR κ.λπ. |
| Συσκευή αφαίρεσης φιλμ υψηλής απόδοσης LOW-Ee Το πλάτος του τροχού αφαίρεσης μεμβράνης που χρησιμοποιείται για την αφαίρεση του στρώματος low-e είναι 20 mm ή 25 mm (παρακαλούμε σημειώστε το ευκρινώς κατά την υποβολή παραγγελίας) . Έχει ένα αυτόματη αφαίρεση σκόνης λειτουργία. Η λειτουργία αφαίρεσης σκόνης ενεργοποιείται αυτόματα μετά την ενεργοποίηση της λειτουργίας αφαίρεσης φιλμ . Έχει ένα αυτόματη αντιστάθμιση τη λειτουργία και Μια βαλβίδα ακριβείας για τη μείωση της πίεσης ελέγχει την πίεση του τροχού λείανσης. Δεν χρειάζεται να ρυθμίσετε το βάθος αφαίρεσης της μεμβράνης κατά τη χρήση. Μπορεί να αφαιρέσει ορθογώνια και ειδικά σχήματα. |
5 λόγοι για τους οποίους μας επιλέγουν οι παγκόσμιοι αγοραστές
Έξυπνη ενσωμάτωση εργοστασίουΤο λογισμικό Optima επιτρέπει την παρακολούθηση της παραγωγής σε πραγματικό χρόνο
Κοπή υψηλής ακρίβειας: Η ακρίβεια ±0.25 mm πληροί τα αυστηρά πρότυπα του κλάδου
Πλήρης Αυτοματισμός: Φόρτωση→Κοπή→Σπάσιμο σε έναν αδιάλειπτο κύκλο
Παγκόσμιο Δίκτυο Υποστήριξης: 24/7 πολύγλωσση τεχνική βοήθεια
Ευελιξία OEM: Προσαρμοσμένες λύσεις για μοναδικές ανάγκες παραγωγής

Προηγμένα Τεχνικά Χαρακτηριστικά
✔ Χωρητικότητα 3,660×2,440mmΕπεξεργάζεται αρχιτεκτονικά πάνελ jumbo
✔ Σύστημα επίπλευσης αέραΧειρισμός γυαλιού χωρίς γρατσουνιές
✔ Αυτόματη εύρεση άκρωνΜειώνει τα απορρίμματα υλικών κατά 15%
✔ Λειτουργία τηλεχειρισμούΛειτουργικότητα περιήγησης 360°
✔ Αυτοδιαγνωστικό σύστημα: Προγνωστικές ειδοποιήσεις συντήρησης
Παράμετροι προϊόντων:
| Χαρακτηριστικά | Λεπτομέρειες |
|---|---|
| Μέγιστο μέγεθος γυαλιού | 3660 x 2440 mm |
| Εύρος πάχους γυαλιού | 3-19 mm |
| Κοπή ακρίβειας | ± 0.2 mm |
| Ταχύτητα κοπής | Έως 200 m/min |
| Ικανότητα φόρτωσης | 3500 kg |
| Σύστημα ελέγχου | Έλεγχος CNC με διεπαφή αφής |
| Τροφοδοσία | 380V / 50Hz |

Λεπτομέρειες:
Το προϊόν HSL-YTJ3826 έχει σχεδιαστεί για επεξεργασία γυαλιού υψηλής ακρίβειας σε διάφορες εφαρμογές. Τα προηγμένα χαρακτηριστικά του εξασφαλίζουν βέλτιστη απόδοση στην αρχιτεκτονική, αυτοκινητοβιομηχανική και διακοσμητική παραγωγή γυαλιού.
Ποιοτικός έλεγχος:
Η αυστηρή διαδικασία ποιοτικού ελέγχου μας περιλαμβάνει μηχανικές δοκιμές και βιντεοεπιθεωρήσεις εργοστασίων, εγγυώμενη ότι κάθε CNC Γυαλί Loading Cutting Breaking Machine πληροί τα υψηλότερα πρότυπα απόδοσης και αξιοπιστίας.
Επιλογές προσαρμογής:
Προσαρμόστε το HSL-YTJ3826 σας στις συγκεκριμένες ανάγκες σας με προσαρμόσιμες επιλογές χρωμάτων και πρόσθετα χαρακτηριστικά για να βελτιώσετε την παραγωγικότητα και την αποτελεσματικότητα στις εργασίες επεξεργασίας γυαλιού.
Πιστοποίηση:
Τα προϊόντα της Huashil Machine είναι πιστοποιημένα με CE και ISO9001, διασφαλίζοντας τη συμμόρφωση με τα διεθνή πρότυπα ασφάλειας και ποιότητας.
προϊόνΕξυπηρέτηση μετά την πώληση:
Η αφοσιωμένη ομάδα εξυπηρέτησης μετά την πώληση παρέχει ολοκληρωμένη υποστήριξη, συμπεριλαμβανομένης της καθοδήγησης εγκατάστασης, της εκπαίδευσης χειριστών και της άμεσης τεχνικής βοήθειας, για την ελαχιστοποίηση του χρόνου διακοπής λειτουργίας και τη μεγιστοποίηση της επένδυσής σας.
Συσκευασία:
Χρησιμοποιούμε ανθεκτικά υλικά και μεθόδους συσκευασίας για να διασφαλίσουμε ότι το προϊόν σας θα φτάσει σε άριστη κατάσταση, έτοιμο για άμεση εγκατάσταση και λειτουργία.
Εταιρεία Εισαγωγή:
Η Huashil Machine βρίσκεται στην πρώτη γραμμή της τεχνολογίας επεξεργασίας γυαλιού, δεσμευμένη στην παροχή καινοτόμων λύσεων που προάγουν την αποτελεσματικότητα και την ποιότητα στην παγκόσμια βιομηχανία γυαλιού.

Εργοστάσιό μας:
Η υπερσύγχρονη μονάδα παραγωγής μας χρησιμοποιεί τις πιο σύγχρονες τεχνικές παραγωγής και μέτρα ποιοτικού ελέγχου για την παραγωγή προϊόντων ανώτερης ποιότητας.

Επιτυχημένες περιπτώσεις:
Έχουμε πολυάριθμες ιστορίες επιτυχίας από ικανοποιημένους πελάτες παγκοσμίως, οι οποίοι έχουν βελτιώσει σημαντικά τις δυνατότητες επεξεργασίας γυαλιού με το προϊόν μας.
Εκθέσεις:
Η Huashil Machine συμμετέχει τακτικά σε διεθνείς εμπορικές εκθέσεις, παρουσιάζοντας τις τελευταίες καινοτομίες των προϊόντων μας σε ένα παγκόσμιο κοινό.

FAQ:
Ε: Ποια είναι η περίοδος εγγύησης για το HSL-YTJ3826;
Α: Προσφέρουμε μια ολοκληρωμένη 12μηνη εγγύηση για όλα τα προϊόντα μας.
Ε: Μπορεί το μηχάνημα να χειριστεί σκληρυμένο γυαλί;
Α: Ναι, το HSL-YTJ3826 είναι ικανό να επεξεργάζεται τόσο σκληρυμένο όσο και μη σκληρυμένο γυαλί εντός του καθορισμένου εύρους πάχους του.
Ε: Πόσο διαρκεί η εγκατάσταση και η εκπαίδευση;
Α: Η τυπική εγκατάσταση και η βασική εκπαίδευση χειριστών μπορούν να ολοκληρωθούν εντός 3-5 ημερών, ανάλογα με την ετοιμότητα του χώρου.
Ε: Ποια είναι η μέση διάρκεια ζωής των εργαλείων κοπής;
Α: Με την κατάλληλη συντήρηση, τα εργαλεία κοπής μπορούν να διαρκέσουν για αρκετούς μήνες κανονικής λειτουργίας.
Ε: Προσφέρετε υποστήριξη απομακρυσμένης διάγνωσης;
Α: Ναι, η τεχνική μας ομάδα μπορεί να παρέχει απομακρυσμένη διάγνωση και αντιμετώπιση προβλημάτων που σχετίζονται με το λογισμικό.
Επικοινωνήστε μαζί μας:
Για περισσότερες πληροφορίες σχετικά με το δικό μας CNC Γυαλί Loading Cutting Breaking Machine ή για να ζητήσετε μια προσφορά, επικοινωνήστε με την ομάδα πωλήσεών μας στο salescathy@sdhuashil.comΖήστε τη διαφορά της Huashil στην τεχνολογία επεξεργασίας γυαλιού σήμερα!
ΜΠΟΡΕΙ ΝΑ ΣΟΥ ΑΡΕΣΕΙ
ΔΕΙΤΕ ΠΕΡΙΣΣΟΤΕΡΑΗμιαυτόματη μηχανή φόρτωσης γυαλιού
ΔΕΙΤΕ ΠΕΡΙΣΣΟΤΕΡΑΜηχανή κοπής γυαλιού σε σχήμα Cnc
ΔΕΙΤΕ ΠΕΡΙΣΣΟΤΕΡΑΜηχανή φόρτωσης και κοπής καθρέφτη
ΔΕΙΤΕ ΠΕΡΙΣΣΟΤΕΡΑΜηχανή κοπής βιτρό
ΔΕΙΤΕ ΠΕΡΙΣΣΟΤΕΡΑΧειροκίνητη μηχανή φόρτωσης γυαλιού
ΔΕΙΤΕ ΠΕΡΙΣΣΟΤΕΡΑΕξοπλισμός κοπής γυαλιού Float
ΔΕΙΤΕ ΠΕΡΙΣΣΟΤΕΡΑΕνσωματωμένη μηχανή κοπής γυαλιού
ΔΕΙΤΕ ΠΕΡΙΣΣΟΤΕΡΑΜηχανή κοπής καθρέφτη Cnc












